首页 关于我们 新闻资讯 产品中心 工程案例 展厅中心

产品中心

产品种类已覆盖医用钢质门、医用推拉门、室内门、防火门、钢质墙板、钢质空间隔断、金属吊顶等。从接待处到ICU,从化验室到手术室,从病房到行政办公,我们为医院空间环境设计研发多年的产品覆盖各类医院的特定需求..

工程案例

米乐官方网页版-米乐(中国)致力于成为可提供高品质医疗建筑环境整体解决方案的专业公司,经过多年的钢质建材产品生产沉淀与发展,产品种类已覆盖医用钢质门...

更多

产品中心









产品特性
  • 适用于病房、诊疗室。
  • 防止人员对门体的接触,减少感染机率。
  • 带有防夹功能,遇阻反弹功能,提高通行效率。
  • 智能环保,有效降低能源消耗,实现不同区域空气阻隔。
  • 方便老弱病残等行动不便者出入,提高医护人员开门的便利性,减少门体损坏


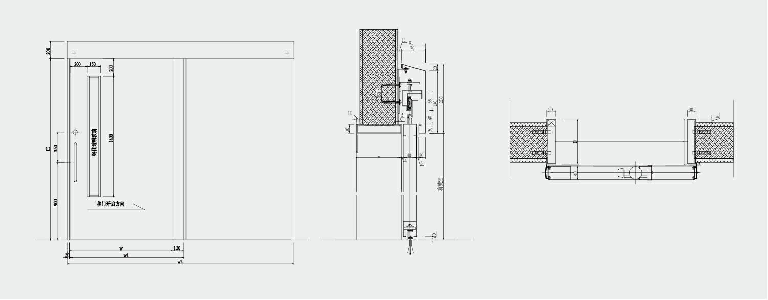
门型参数
  • 门框钢板厚度1.5mm
  • 门扇钢板厚度0.6mm
  • 门扇厚度40~50mm
  • 门扇骨架厚度≥1.0mm
  • 开闭门运动速度250-500mm/s(可调)
  • 手动推力<100N
  • 供电需求220±20%VAC,50/60Hz
  • 控制器可选配驱动感应器
  • 隔声性能Rw=33dB三级(GB/T8485-2008)
  • 防撞性能符合GB/T20909-2007
  • 保温性能传热系数K=2.8W/(m2.k)五级
  • 内部填充聚氨酯发泡材料、蜂窝芯
  • 单开门1250×2500
  • 双开门2500×2500
  • 可选视窗圆形、方形玻璃视窗圆形、方形玻璃视窗
资料下载