首页 关于我们 新闻资讯 产品中心 工程案例 展厅中心

产品中心

产品种类已覆盖医用钢质门、医用推拉门、室内门、防火门、钢质墙板、钢质空间隔断、金属吊顶等。从接待处到ICU,从化验室到手术室,从病房到行政办公,我们为医院空间环境设计研发多年的产品覆盖各类医院的特定需求..

工程案例

米乐官方网页版-米乐(中国)致力于成为可提供高品质医疗建筑环境整体解决方案的专业公司,经过多年的钢质建材产品生产沉淀与发展,产品种类已覆盖医用钢质门...

更多

产品中心









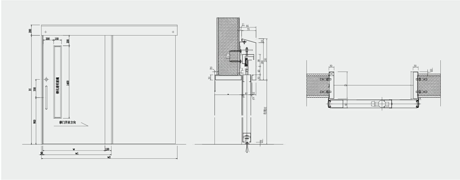
产品特性
  • 在建筑墙体门洞宽度尺寸有限的前提下,二联式的移门,可轻松实现更大的有效通过宽度。
  • 采用轻量化的壁挂式双层金属夹板设计,进出顺畅、不积尘、卫生、方便清洁。
  • 移门关闭过程中,双层夹板通过联动机构同时平移运行,与门板一起整齐的嵌入墙体夹层,使建筑整体效果更加简洁、流畅,一气呵成。
  • 自动闭门功能,末端缓冲装置,全开停门,天地门锁等功能。
  • 斜面式样视窗,不积尘、卫生、方便清洁。
门型参数
  • 门框钢板厚度1.5mm
  • 门扇钢板厚度0.6mm
  • 门扇厚度40~50mm
  • 门扇骨架厚度≥1.0mm
  • 开闭门运动速度250-500mm/s(可调)
  • 手动推力<100N
  • 隔声性能Rw=33dB三级(GB/T8485-2008)
  • 防撞性能符合GB/T20909-2007
  • 保温性能传热系数K=2.8W/(m2.k)五级
  • 内部填充聚氨酯发泡材料、蜂窝芯
  • 单开门1250×2500
  • 可选视窗圆形、方形玻璃视窗
资料下载